
調溫型91视频链接下载組成及作用
調溫型91视频链接下载適合高溫環境中使用,在一些溫度變化比較大,溫度比較高的場合下,使用調溫型除濕機的話,對於降低環境內溫度和濕度會有比較顯著和良好的效果,給91视频在线观看免费的生產和工作帶來的極大的方便。
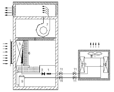
調溫型91视频链接下载的濕裝置由除濕蛋和承座組成。

所謂除濕蛋,就是一種多孔的,透氣較好的的陶瓷外殼,除濕蛋的裏麵是一個容器,裏麵有吸收空氣水汽的物質,本體底麵設一穿孔,用一塞套封閉,該外殼外麵得局部塗設濕度感應材料,以顯示除濕蛋的吸濕狀況;該承座為托持除濕蛋的座體,其中承座得為夾狀結構,由左右夾板組成,兩夾板形成的夾口作為除濕蛋的承窩,夾板上得設有透視窗,透視窗內設有濕度成應材,以顯示除濕蛋的吸濕狀況。
調溫型91视频链接下载與一般型91视频链接下载相比,在製冷係統中,增設了一個水冷冷凝器(水冷式)或一個室外風冷冷凝器(分體風冷式),再熱器麵積可減小。這裏麵有兩種做法,一種是將再熱器置於水冷或風冷冷凝器前麵,與後者串聯布置,並分多路控製,以此調節對冷卻除濕後空氣的加熱量,從而達到控製出風溫度的目的。另外,水冷式設比例式三通水量調節閥,調節冷卻水量,風冷式設冷凝風量控製,從而使冷凝器帶走多餘的熱量。
另一種做法是將再熱器置於水冷或風冷冷凝器後麵,也是串聯布置,隻通過水冷式的水量調節閥調節冷卻水量或風冷式的冷凝風量控製,來調節冷凝器帶走的熱量,從而到達調節出風溫度的目的。

<
<
<
<
<
<
<
<
